Våre prosjekter
Næring
Referanser
Om Taraldset
Kontakt
Sørjordet
Om prosjektet
Nærområdet
Galleri
Om utvikler
Meld interesse
Hus 2B
Meld interesse
0
1
2
3
4
Status
Solgt
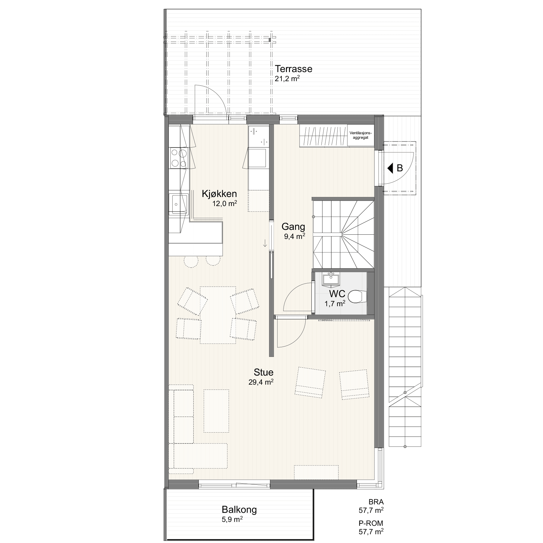
Hus
Hus 2B
Pris
Soverom
5
BRA m²
173.2
P-Rom m²
143.7
Vedlegg
Hus 2B Salgstegning
Garasjeplasser
1
Parkeringsplasser
1
Balkong m²
5,9
Terrasse m²
21,2
Omkostninger
Meld interesse
Fyll inn navn
Fyll inn telefonnummer
Fyll inn e-post
Jeg ønsker å bli kontaktet i samtykke med denne
personvernerklæringen
Send
Powered by
Plyo
| Design by
vycom
Tilbake til Boligvelger